Celesc publica nova normativa para uso dos postes e amplia número de ocupantes

01/12/2025 11:06

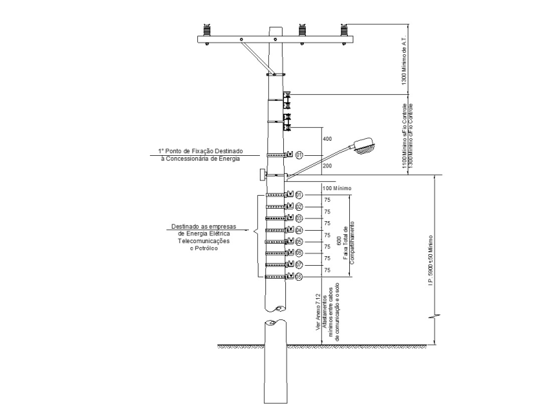
A Celesc divulgou uma nova normativa que atualiza as regras de uso e compartilhamento da infraestrutura de postes em Santa Catarina. Entre as mudanças mais relevantes, está a ampliação do número máximo de ocupantes por poste: o limite, que antes era de cinco empresas, passa agora a ser de oito.

A atualização atende a uma demanda crescente do setor de telecomunicações, que vem expandindo sua rede e necessita de mais espaço e organização para ampliar a conectividade no estado. A mudança também representa um avanço para a competitividade e para a inclusão de novos prestadores de serviço no mercado catarinense.

A Apronet desempenhou papel decisivo nesse processo. Durante meses, a entidade participou de reuniões técnicas, apresentou estudos e propôs ajustes que contribuíram para a construção de um regulamento mais equilibrado e alinhado à realidade dos provedores regionais.

O presidente da Apronet, Amilcar Lago, celebrou o avanço e destacou o compromisso da associação com o desenvolvimento do setor: “Esse é o papel da Apronet: apresentar propostas que melhorem o setor, dando voz aos provedores e buscando sempre a equidade entre todos os agentes envolvidos." Destaca o Presidente, que conclui. "O trabalho não para, temos muitas coisas a buscar ainda pelo setor, estamos no caminho certo".

  • Av. Getúlio Vargas, 415 - Centro
    Araranguá - SC

Sobre nós

A ASSOCIAÇÃO Constituída em outubro de 2016 em Santa Catarina, a APRONET é uma Associação sem fins lucrativos que busca representatividade e ampliação do acesso a mercados, compartilhamento de informações, capacitações, ... Ler mais

Associação Catarinense dos Provedores de Internet – Apronet CNPJ - 26.945.397/0001-88
SISDADO TECNOLOGIA © Copyright 2026 APRONET - Todos os direitos reservados.